Residencial
Itapuã

Residencial Itapuã

Inspirado na atmosfera poética de uma das praias mais emblemáticas de Salvador, Itapuã é mais que um endereço — é um convite a viver com alma, cercado por memórias, cultura e elegância.

Vinicius de Moraes e Dorival Caymmi escolheram Itapuã como lar. Foi aqui que nasceram versos, canções e histórias que marcaram gerações. E é com esse mesmo espírito que nasce este empreendimento: para ser eterno como uma canção, marcante como a luz do farol, sofisticado como a vida que você merece.

Com plantas de 80 a 182m², os apartamentos do Residencial Itapuã são sinônimos de alto padrão, conforto e exclusividade, pensados para quem valoriza o melhor da vida — sem abrir mão de história, localização e estilo.

Residencial Itapuã.
O lugar onde o passado encontra o presente — e onde você encontra o seu novo lar.

Confira os detalhes do empreendimento

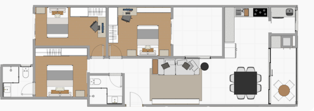
PLANTA TIPO 1 - 25M²

PLANTA TIPO 2 - 97,14M²

PLANTA TIPO 3 - 82,32M²

PLANTA TIPO 4 - 90,21M²

COBERTURA - 166,68M²

Status de execução da obra

Serviços preliminares
100%
Estrutura
100%
Alvenaria
100%
Infraestrutura
40%
Esquadrias
10%
Revestimentos Internos
5%
Revestimentos externos
5%
Pintura
15%

CONFIRA O ANDAMENTO DA OBRA

LOCAL DO PROJETO

PRONTO PARA INVESTIR COM SEGURANÇA?

Fale agora com nosso time de consultores e descubra o empreendimento ideal para o seu objetivo.